The in-box project is a project of four new summer houses (designed by the architectural firm Modulus Architecture) at a plot of 700m2 located at the local community of Kastraki on Naxos island. Without the existence of a particular building program, flexibility was the primary demand of the design process. The main purpose was the integration of the residences at the natural habitat and their adaptation at the restrictions of the plot.
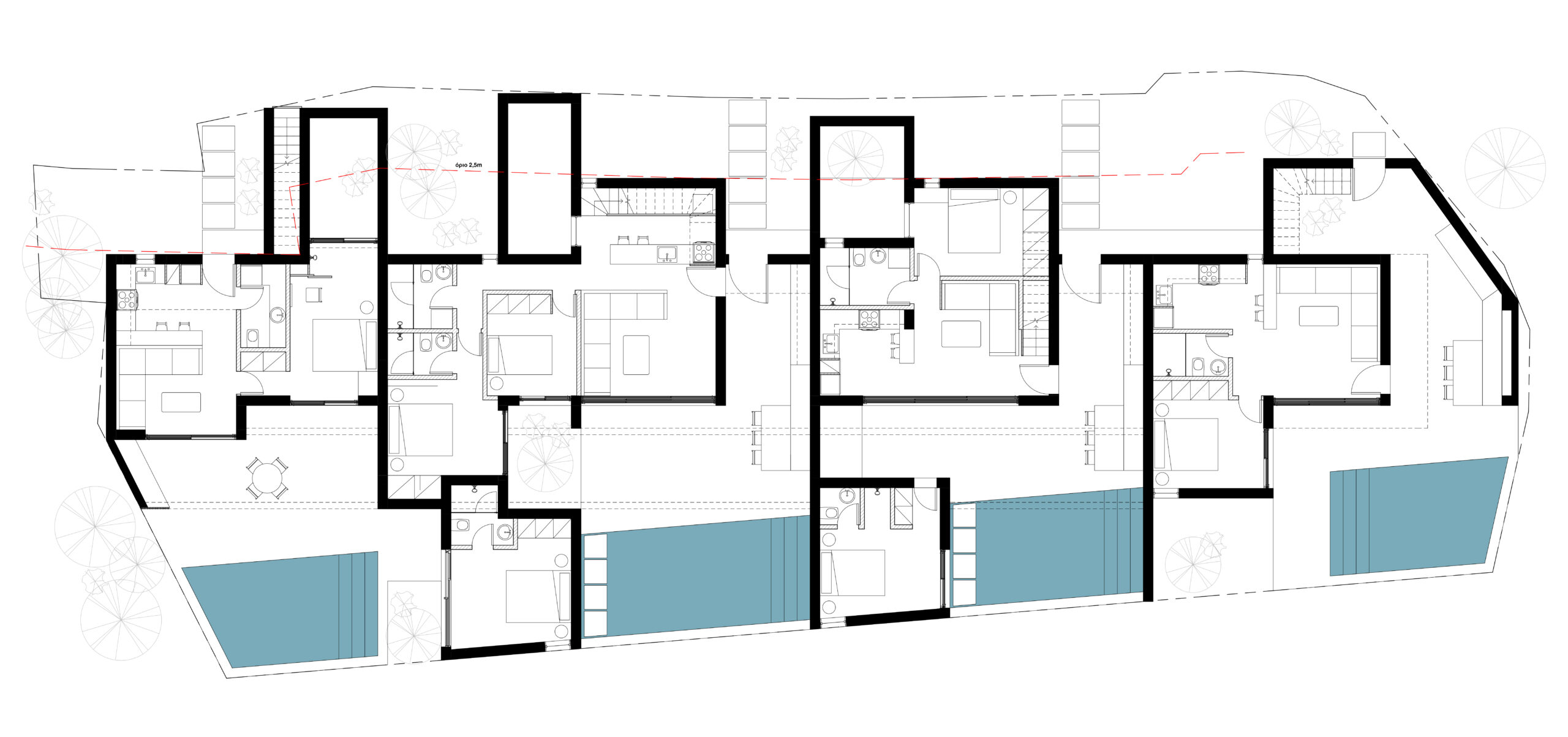
The design begins from a linear bar which constitutes the main part of the residences. Then, a number of volumes, boxes, are attached to this bar. These boxes offer flexibility, as, through the design process, they can be attached to a different residence based on the needs of each one. In any case, their spot at the plot makes them function as a boundary between the summer houses offering privacy to each one of them. Designed to have different heights, the boxes form interesting spatial qualities in this small plot and they generate a game of light and shadow inspired by the traditional cycladic architecture. The entrance is located at the back side of the plot and there is the possibility to access directly the main yard of each house, while straight walls offer boundaries to the residences and create inner yards.
The water, as an indispensable element for each summer house, is designed in a form of a straight line that follows the inclination of the plot and seems to unite all the residences into one. Wooden pergolas are integrated in the design and enable the users to enjoy the yard throughout the day. The terraces of each house are used as yards in order to take advantage of the view to the sea. Planted roofs separate each property from the other and vegetation is used as a natural boundary, offering privacy.
The dominant material of the synthesis is white plaster, which refers to the traditional cycladic architecture. Meanwhile, the wood creates a warmer and more natural result. Combined with the nature that prevails and the vegetation, the integration in the natural surroundings is accomplished and a synthesis is formed that offers to the user the experience of island life and summer in Greece.

























