Home
Projects
News
About
Contact
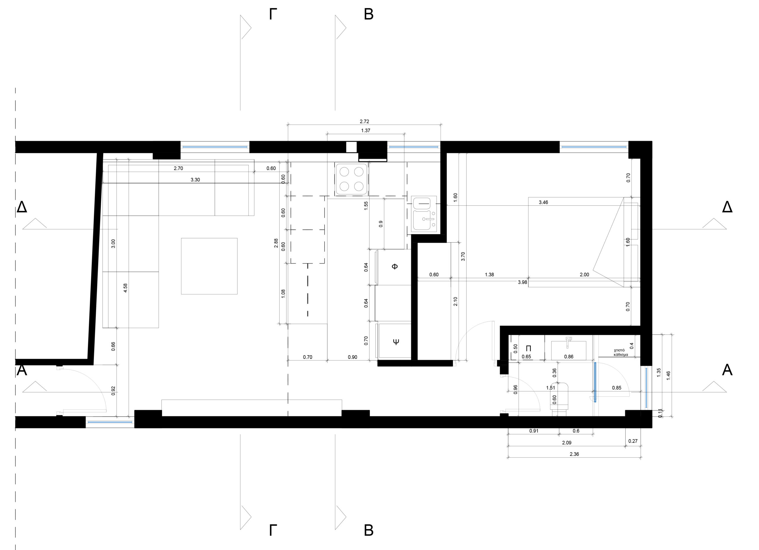
Architectural Design
Modulus Architecture
Year
2022
Location
Psychiko, Athens
Type
Residential
Area
50 sqm
Status
Complete
This site uses cookies. Find out more about cookies and how you can refuse them.
I Accept
Home
Projects
News
About
Contact